本数据机房冷冻站施工方案旨在确保机房设备正常运行和人员安全,方案包括冷冻站设备选型、布局设计、管道连接、电气控制等关键内容,确保满足机房冷却需求,提高设备运行效率,降低能耗,实施过程中需严格遵守相关标准和规范,确保施工质量和安全性。
项目背景与目标
随着信息技术的快速发展,数据机房建设已成为企业信息化建设的重要组成部分,为了确保数据机房的正常运行和稳定运行,本项目将针对数据机房冷冻站进行施工方案的设计与实施,本方案的目标是提供一个高效、安全、可靠的冷冻站施工方案,以满足数据机房对温度、湿度和洁净度的要求。
施工方案概述
- 施工范围:本施工方案适用于新建或改造的数据机房冷冻站。
- 施工步骤:
(1)现场勘察:对数据机房进行现场勘察,了解现有环境、设备情况及需求。
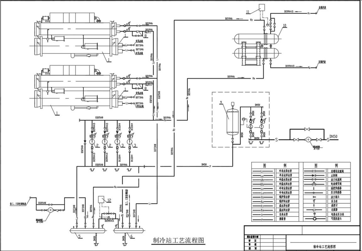
(2)设计方案制定:根据现场勘察结果,制定冷冻站施工方案。
(3)设备采购与安装:采购所需设备,并进行安装。
(4)系统调试与测试:对系统进行调试和测试,确保其正常运行。
(5)培训与交付使用:对参与施工的人员进行培训,并交付使用。
具体施工方案
设备选型与采购
(1)选择适合的数据机房冷冻站设备,确保其性能稳定、可靠。
(2)根据需求采购设备,包括制冷机组、过滤器、温度传感器等。
现场环境改造
(1)对数据机房进行地面硬化处理,确保其具有良好的防尘、防潮性能。
(2)对机房内设备进行合理布局,确保其通风良好。
系统安装与调试
(1)根据设计方案,将设备进行安装,并确保安装位置符合要求。
(2)对系统进行调试,包括温度、湿度、洁净度的检测和控制。
(3)对系统进行性能测试,确保其正常运行。
人员培训与交付使用
(1)对参与施工的人员进行培训,确保其了解施工流程、设备性能及操作方法。
(2)将施工完成的冷冻站交付使用,并进行日常维护和管理。
施工注意事项
- 严格按照设计方案进行施工,确保施工质量符合要求。
- 确保设备采购质量可靠,避免出现故障。
- 施工过程中要做好安全防护措施,确保施工人员的人身安全。
- 施工过程中要做好环境保护工作,避免对环境造成污染。
本数据机房冷冻站施工方案旨在提供一个高效、安全、可靠的施工方案,以满足数据机房对温度、湿度和洁净度的要求,在施工过程中,要严格按照设计方案进行施工,确保施工质量符合要求,同时要做好安全防护和环境保护工作。




















